Arling Street Alteration & Addition

Rosebud, Victoria

This project revisits a home I originally documented for the Smith family ten years earlier. With changing circumstances and the need to accommodate multigenerational living, the brief focused on adapting the existing dwelling while preserving the generous backyard and connection to place.

The design introduces a second-storey addition containing a master bedroom, ensuite, walk-in robe, and parents’ retreat. This vertical expansion allows Annette, the client’s mother, to reside comfortably in the existing ground-floor master suite, supporting accessibility and long-term liveability.

The upper level is expressed through lightweight James Hardie ‘Axon’ vertical cladding and a 19-degree pitched Klip-Lok metal roof, both in ‘Monument’, creating a contemporary yet cohesive addition to the original home.

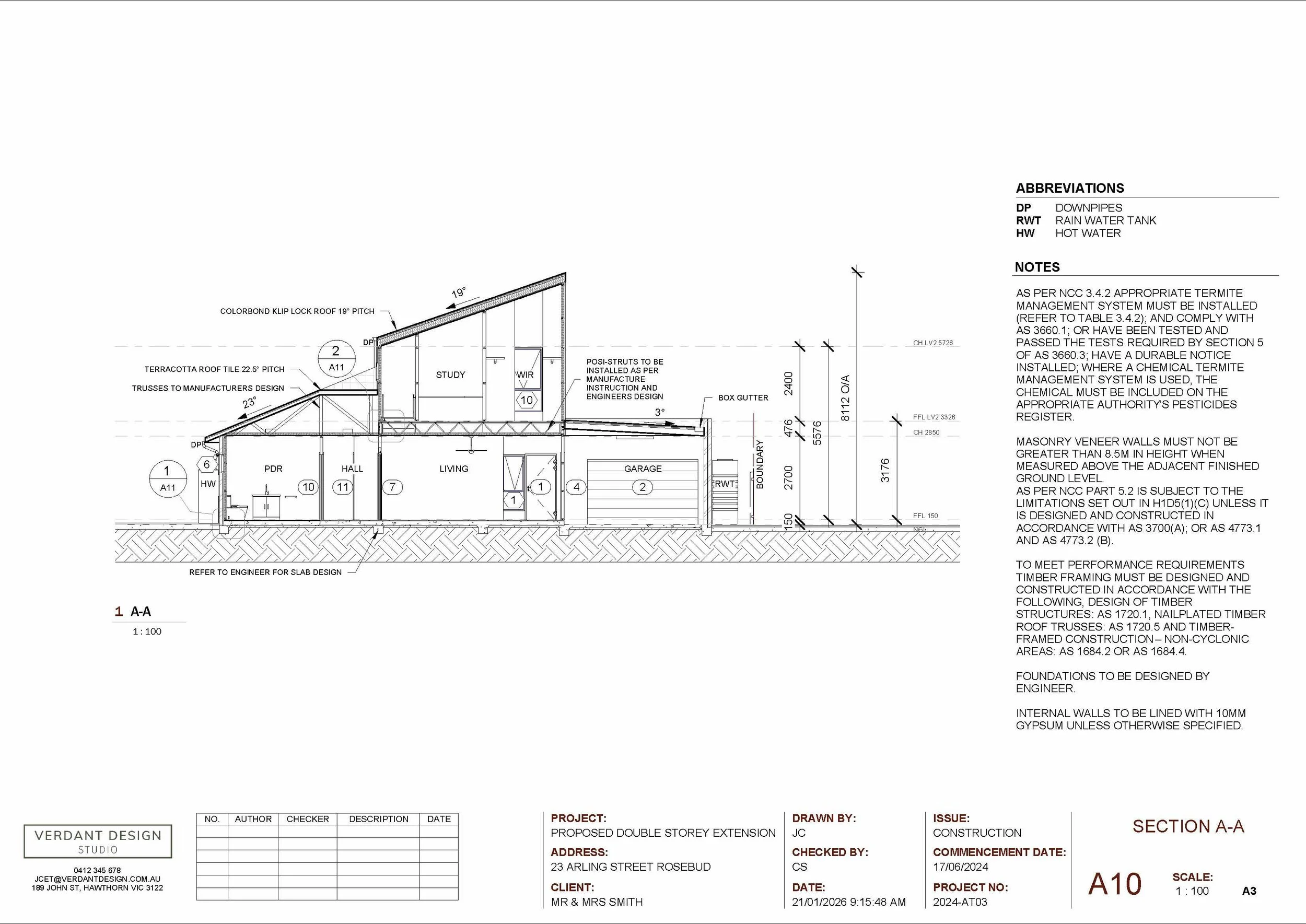
This project was my first-year working drawing assignment, marking my transition from concept design into detailed technical documentation. The original AutoCAD drawings were rebuilt in Revit to develop a comprehensive BIM model, forming the basis of a full working drawing package including plans, sections, elevations, details, schedules, shadow diagrams, and compliance documentation.

Developed in accordance with NCC Volume 2 (2022), ResCode, and relevant Australian Standards, the project demonstrates an understanding of buildability, coordination with structural engineering (including Posi-Strut floor framing), and industry documentation standards.

This assignment represents a foundational milestone in my development as a designer; combining design intent with technical precision.

Previous
Previous

MORNINGTON

Next
Next

HENRY STREET