Second Year Assignment - Church Street

Assignment Overview

The project, located at the intersection of Church Street and Shamrock Street, will include underground parking, residential apartments, retail spaces, and commercial offices. The building should be functional, visually appealing, and feature at least three different durable and sustainable materials in its facades. Basement parking must meet council requirements for residents and employees.

The assignment scope includes preparing a Feasibility Report, Schematic Designs, presenting designs to stakeholders, completing Town Planning documentation, and producing construction drawings to obtain building approval.

Design Response

The design for the Church Street Mixed-Use Development prioritises sustainability, occupant wellbeing, and a strong connection to place. Passive design strategies, such as natural light, ventilation, and thermal comfort, combine with energy-efficient systems, renewable technologies, and water harvesting to reduce the building’s environmental impact. Outdoor spaces and communal green areas further support mental and physical wellbeing while encouraging social interaction.

Materials such as brick, metal, concrete, and glass reference Richmond’s industrial heritage, while exposed structural elements reinforce this connection. Biophilic design and the use of natural materials, muted earthy tones, and native vegetation to foster a connection to nature, enhance biodiversity, and evoke a sense of calm and peace.

The architectural concept blends industrial character with wabi-sabi principles, embracing natural materials, asymmetry, softness, and the beauty of imperfection. Curved forms, organic textures, and reclaimed stone and timber create a calming, nature-connected atmosphere throughout.

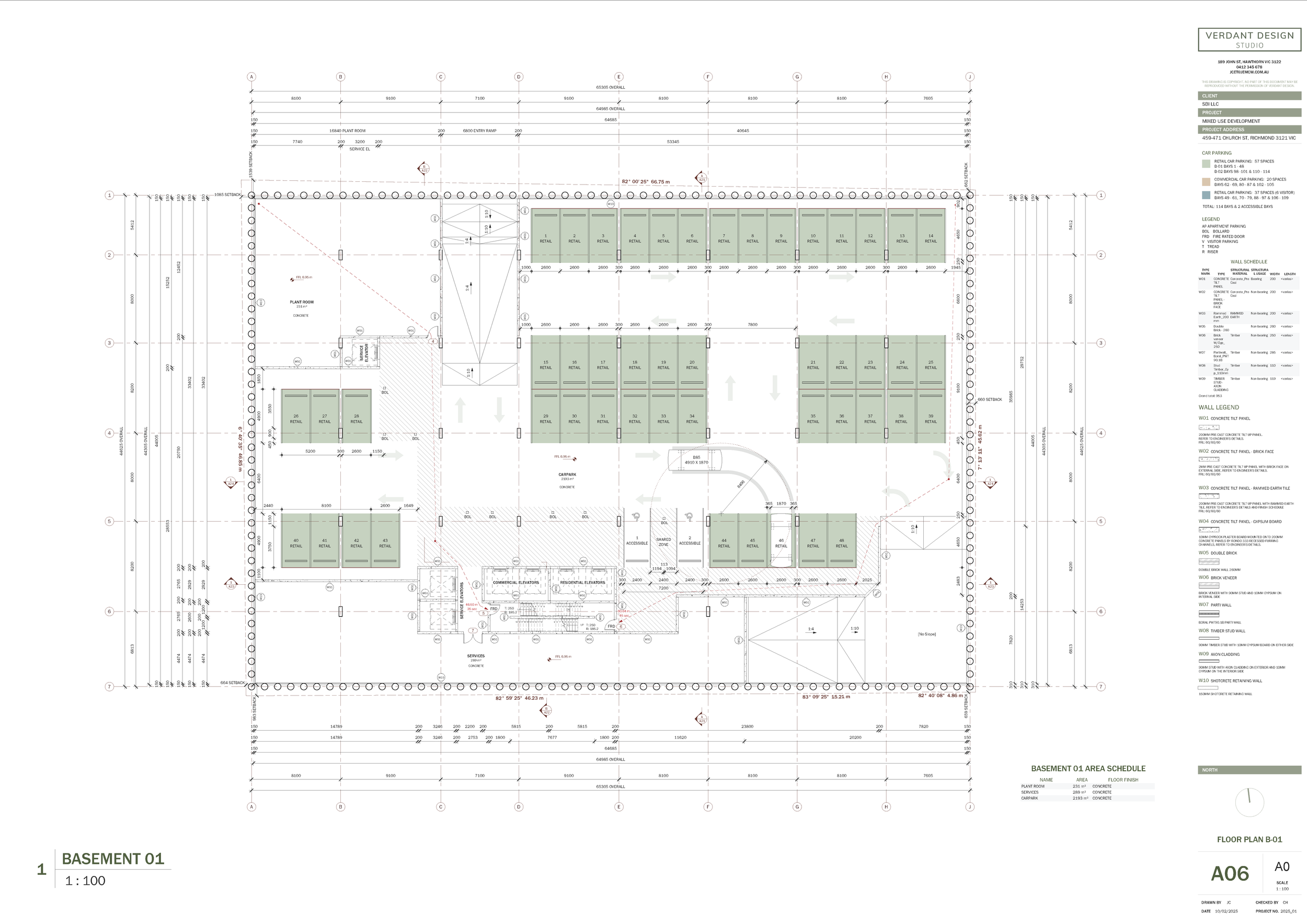
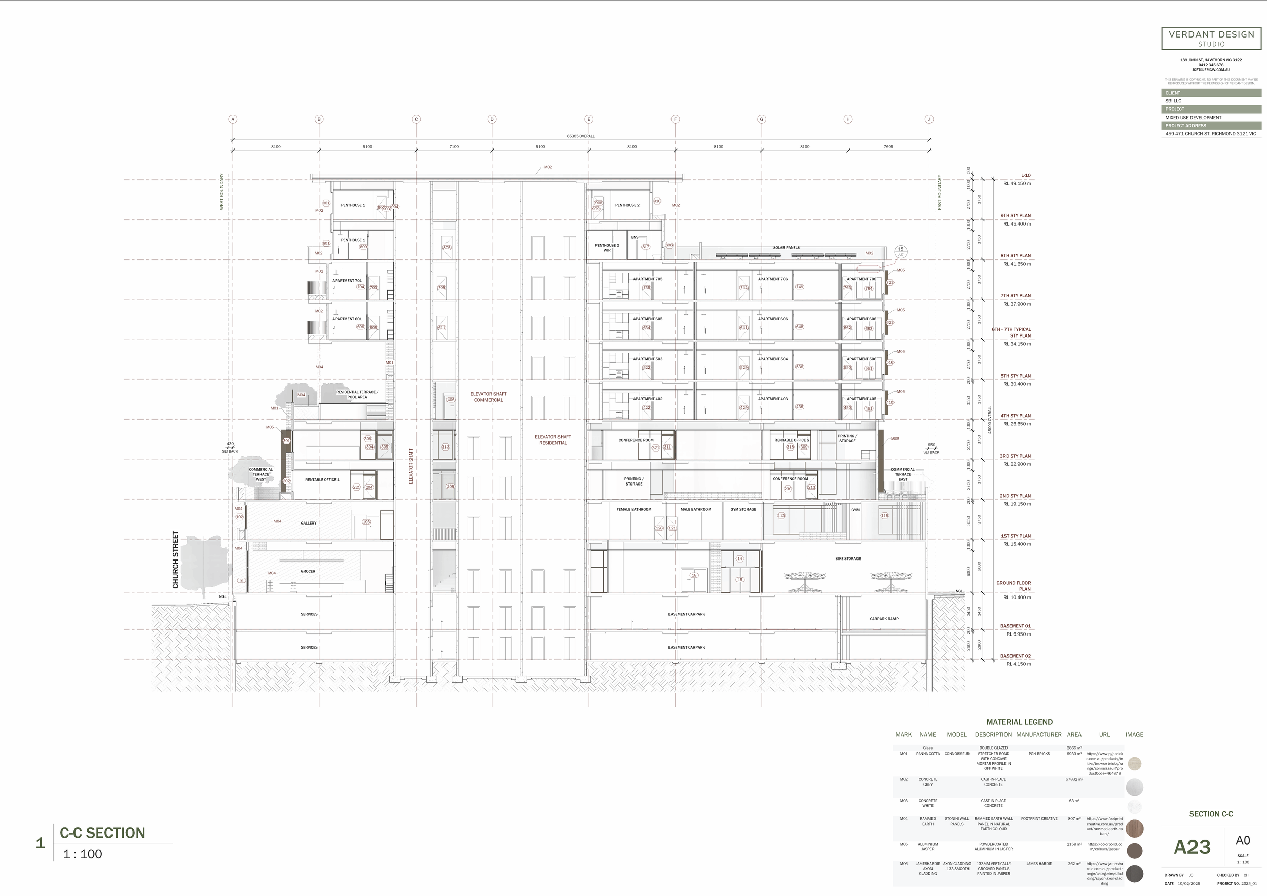
Basement levels B01-B02 provide car parking with EV chargers, accessible bays, rainwater and greywater systems, and plant rooms. Levels L00-L01 include the main courtyard, mail room, bike storage, end-of-trip facilities, and a range of retail tenancies including a grocer, hairdresser, plant store, furniture store, bulk foods, restaurant, brewery, art gallery, and gym.

Commercial floors on L02-L03 offer flexible workspaces with single desks, meeting rooms, private offices, two kitchens/break areas, and large north-facing windows shaded by deciduous vines. Both terraces include rentable BBQ areas to support workplace wellbeing and connection to nature.

Residential levels L04-L09 contain 29 apartments, including two penthouses, accommodating 45 residents. The residents’ terrace features a pool with wheelchair lift, communal BBQ facilities, vegetable gardens, and lawn areas for recreation and pets.

WALKTHROUGH


The walkthrough begins at the main entrance along Church Street, welcoming viewers into a stylish and inviting lobby that sets the tone for the building’s contemporary design. From here, the tour flows seamlessly into a landscaped courtyard, where carefully curated greenery and communal spaces provide a sense of openness and connection to nature, creating a tranquil retreat within the urban environment.

The video then guides viewers briefly through the Brewery. Following the Brewery, the tour moves through commercial office spaces and North-West terrace, showcasing modern work environments designed for functionality, comfort, and collaboration.

Next, the walkthrough moves to the residential terrace, a central hub for leisure and wellbeing. This area features communal vegetable patches for sustainable living, additional BBQ facilities for social gatherings, and swimming pool featuring waterfall edges and beach-style zone. The design of this terrace encourages interaction among residents while providing spaces for relaxation, recreation, and connection to nature.

The video then transitions into the residential apartments, showcasing a selection of one and two bedroom apartments, and the North-West penthouse.

Previous
Previous

HENRY STREET

Next
Next

NORTON ROAD